Khi bạn bắt đầu xây dựng ngôi nhà mơ ước, bộ hồ sơ thiết kế công trình xây dựng chính là nền tảng, là “bản đồ dẫn đường” để mọi thứ được thực hiện chính xác. Nhưng hồ sơ thiết kế xây dựng nhà ở gồm những gì? Hãy cùng Kiến Phúc An khám phá chi tiết trong bài viết dưới đây.
Hồ sơ thiết kế công trình xây dựng là gì?
Hồ sơ thiết kế công trình xây dựng là tập hợp các bản vẽ, tài liệu kỹ thuật chi tiết mô tả hình dạng, kết cấu, và hệ thống kỹ thuật của ngôi nhà. Đây là tài liệu quan trọng giúp chủ đầu tư, kiến trúc sư và đội ngũ thi công hiểu rõ và thực hiện chính xác ý tưởng xây dựng.
Tại sao cần hồ sơ thiết kế công trình xây dựng?
Một bộ hồ sơ thiết kế chi tiết không chỉ giúp gia chủ hình dung rõ ràng về ngôi nhà tương lai mà còn:
- Tiết kiệm chi phí: Hạn chế tối đa sai sót trong thi công, tránh sửa chữa không cần thiết.
- Quản lý tiến độ: Đảm bảo từng hạng mục được hoàn thành đúng kế hoạch.
- Tăng tính thẩm mỹ: Mọi chi tiết từ ngoại thất đến nội thất đều được tối ưu.
Xem thêm: 5+ lợi ích khi thiết kế trước khi xây dựng nhà ở
Hồ sơ thiết kế công trình xây dựng nhà ở gồm những gì?
1. Hồ sơ thiết kế kiến trúc
Phần kiến trúc thể hiện hình dáng tổng thể và chi tiết của ngôi nhà, bao gồm:
- Mặt bằng bố trí các tầng và mái.
- Mặt đứng và mặt cắt công trình.
- Chi tiết cửa, cầu thang, vệ sinh.
- Thiết kế trần, tường, sàn, ban công, và các không gian khác.

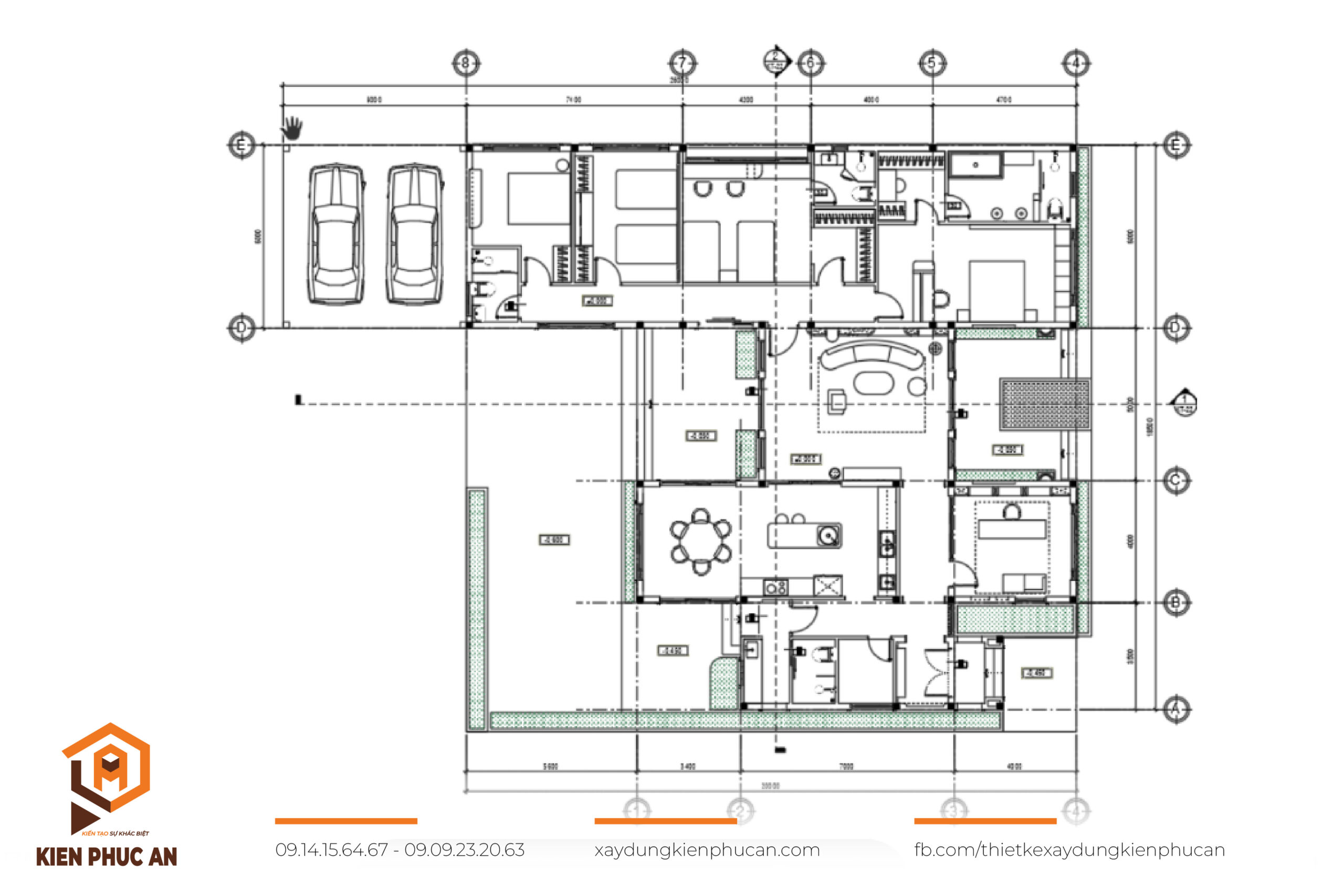
Hồ sơ kiến trúc
Vai trò của bộ hồ sơ này là giúp gia chủ và đội ngũ thi công hình dung chính xác kiến trúc ngôi nhà, đảm bảo tính thẩm mỹ và công năng.
2. Hồ sơ thiết kế kết cấu
Phần kết cấu đảm bảo sự an toàn và độ bền vững cho công trình, bao gồm:
- Thiết kế móng: Cọc, dầm móng, đà kiềng.
- Thiết kế cột, dầm, sàn các tầng.
- Chi tiết cầu thang, lanh tô, kết cấu mái,…
Bộ này giúp đảm bảo công trình thành quả có thể chịu được các tác động từ môi trường và sử dụng lâu dài.
3. Hồ sơ thiết kế hệ thống kỹ thuật
Hệ thống kỹ thuật bao gồm:
- Hệ thống điện: Sơ đồ bố trí đèn, ổ cắm, tủ điện, máy lạnh.
- Hệ thống nước: Sơ đồ cấp thoát nước, lắp đặt thiết bị vệ sinh.
- Hệ thống an ninh và internet (nếu có): Lắp đặt camera, mạng.
Từ đó, chúng giúp đảm bảo các hệ thống vận hành ổn định, an toàn và tiết kiệm năng lượng.
4. Hồ sơ thiết kế ngoại thất
Hồ sơ ngoại thất bao gồm các hạng mục như
- Ban công, hàng rào, sân vườn.
- Chọn màu sơn, vật liệu mái, gạch lát sân.
- Lắp đặt đèn trang trí ngoại thất
- Một số đồ ngoại thất khác


Hồ sơ ngoại thất
Việc này giúp tạo ấn tượng ban đầu về ngôi nhà và tối ưu không gian sử dụng ngoài trời.
5. Hồ sơ thiết kế nội thất
Phần nội thất giúp gia chủ dễ dàng hình dung cách bố trí các phòng và đồ dùng:
- Bản vẽ 3D nội thất chi tiết từng không gian.
- Thiết kế tủ, kệ, bàn ghế, giường.
- Sắp xếp vật dụng hợp phong thủy và thẩm mỹ.


Hồ sơ thiết kế nội thất
Vai trò của bộ này nhằm mang lại không gian sống thoải mái, thể hiện phong cách riêng của gia chủ.
6. Hồ sơ dự toán công trình
Dự toán bao gồm:
- Chi phí vật liệu xây dựng.
- Chi phí nhân công, máy móc.
- Chi phí phát sinh (nếu có).
Điều này giúp gia chủ quản lý ngân sách hiệu quả, tránh phát sinh ngoài ý muốn.
Xem thêm: Khái toán là gì? Khái toán và dự toán khác nhau như thế nào?
Một số câu hỏi thường gặp về hồ sơ thiết kế công trình xây dựng
1. Hồ sơ thiết kế công trình có cần thiết khi xây nhà nhỏ không?
Có. Dù là công trình lớn hay nhỏ, hồ sơ thiết kế giúp bạn hình dung rõ ràng và tránh được các sai sót khi thi công.
2. Thời gian hoàn thiện hồ sơ thiết kế mất bao lâu?
Tùy thuộc vào quy mô công trình, thời gian trung bình dao động từ 2-4 tuần.
3. Chi phí thiết kế có cao không?
Chi phí thiết kế phụ thuộc vào diện tích và mức độ phức tạp của công trình. Tuy nhiên, đầu tư vào thiết kế sẽ giúp bạn tiết kiệm nhiều chi phí hơn trong thi công.
4. Tôi có thể yêu cầu chỉnh sửa hồ sơ không?
Được. Tại các công ty thiết kế xây dựng uy tín, chúng tôi luôn lắng nghe và chỉnh sửa theo yêu cầu của khách hàng.
5. Hồ sơ thiết kế có bao gồm giấy phép xây dựng không?
Hồ sơ thiết kế là tài liệu phục vụ thi công, còn giấy phép xây dựng sẽ được xử lý riêng theo quy định pháp luật.
Xem thêm: Những điều cần tránh khi thiết kế xây dựng nhà ở
Như vậy, bộ hồ sơ thiết kế công trình xây dựng không chỉ là một tập tài liệu mà còn là công cụ giúp bạn biến giấc mơ về ngôi nhà hoàn hảo thành hiện thực. Nếu bạn cần tư vấn chi tiết, đừng ngần ngại liên hệ ngay với Kiến Phúc An để được hỗ trợ và tư vấn chi tiết nhất cho mái ấm và công trình của bạn!

Bài viết liên quan: