Cách tính khối lượng bê tông luôn là vấn đề gây đau đầu cho các gia chủ khi có ý định xây nhà. Nhiều gia chủ đã vấp phải những sai lầm khi tính sai khối lượng của bê tông sử dụng.
Để giúp bạn công thức tính khối lượng bê tông chuẩn hay chưa? Nếu chưa thì bài viết này thật sự bổ ích để giúp bạn tính toán chính xác nhất đấy nhé!

Bê tông là gì? Tại sao chúng ta cần tính khối lượng bê tông?
Khái niệm bê tông là gì?
Bê tông là một thành phần đá nhân tạo, được tạo ra từ các nguyên vật liệu theo tỷ lệ khác nhau gồm: cốt liệu mịn, cốt liệu thô và chất kết dính,… Khả năng chịu lực nén rất tốt nhưng lực kéo lại kém. Vì vậy, người ta thường đưa thép, sắt vào bên trong để tăng tính chịu lực kéo.
Loại vật liệu phổ biến, được sử dụng rộng rãi trong nhiều công trình lớn nhỏ như: đập, đường xá, bệnh viện, tòa nhà, hồ chứa hay trường học,…
Tính khối lượng bê tông cho mục đích gì?
Bất kỳ nhà thầu kinh nghiệm nào cũng cần phải dự toán thật kỹ lưỡng với tỷ lệ chính xác cao. Đây được xem như một bước ngoặt quan trọng ảnh hưởng đến kết quả công trình. Phải được lên kế hoạch trước khi tiến hành thi công.

Lý do cần phải tính khối lượng bê tông đối với nhà thầu, chủ đầu tư và cho công trình được liệt kê như dưới đây:
- Đóng vai trò lớn trong hoạt động dự toán tối ưu nhất cho công trình. Cách đo bóc khối lượng bê tông cần được nắm vững trước khi bắt đầu xây lắp;
- Quá trình xây dựng trở nên thuận lợi hơn nếu tính toán chính xác khối lượng bê tông. Tiến độ xây dựng được đảm bảo và giảm thiểu phát sinh rủi ro không đáng có;
- Phục vụ cho việc lập dự án, kế hoạch để dự toán vật liệu hiệu quả nhất. Khối lượng những loại cốt liệu mịn, thô và chất kết dính phù hợp;
- Lượng bê tông thất thoát được kiểm soát dễ dàng, phần thừa thiếu được tính toán rõ ràng và sau phạm khi thi công;
- Tính toán khối lượng đối với bê tông tươi hỗ trợ cho việc đặt hàng bê tông từ các đơn vị phân phối cùng sự chuẩn bị kỹ lưỡng và chính xác về số lượng;
- Nhà thầu dễ dàng quản lý xây dựng và đạt hiệu quả với độ chính xác tuyệt đối;
- Chi phí được tiết kiệm ở mức tối đa bằng việc dự toán số lượng bê tông cần sử dụng từ trước và chính xác.
>>> Xem ngay: Cách tính chi phí xây nhà cấp 4 chính xác, tiết kiệm, dễ thực hiện
Công thức tính khối lượng bê tông xây dựng với Excel
Công thức tính được chuyên gia là kỹ sư của Kiến Phúc An tổng hợp và đúc kết từ nhiều công trình thực tiễn. Chúng tôi tổng hợp lại thành một file Excel để tiện sử dụng. Các bạn chỉ cần nhập số liệu vào sẽ ra được kết quả chính xác.
Những công thức được tổng hợp trong file Excel bao gồm:
Bảng tính khối lượng cho phần bê tông cột

Bảng tính khối lượng phần ngầm

Bảng tính khối lượng dầm và cốp pha

>>> Bạn đọc có thể tải xuống File Excel: Tải bảng tính khối lương
Hướng dẫn cách tính khối lượng bê tông trong xây dựng chuẩn xác
Cách tính khối lượng bê tông thật ra không quá phức tạp, các bạn chỉ cần làm đúng theo như hướng dẫn của từng loại. Mời bạn tham khảo cách tính được các chuyên gia khuyến nghị:
Bê tông cốt thép (đáy cọc vuông)
Các bạn áp dụng công thức như sau để tính khối lượng bê tông và thép cần sử dụng:
Vbt = Vbt Đ1 (số cột * thể tích cột Đ1) + Vbt Đ2 (số cột * thể tích cột Đ2). Với Vbt Đ1 – thể tích bê tông đoạn cột Đ1 (công thức tính: chiều dài trung bình đoạn cột Đ1 * chiều dày * chiều rộng. Vbt Đ2 là thể tích bê tông đoạn cột Đ2 công thức tính tương tự Đ1.
Số cột chính là số lượng cột bê tông sử dụng cho công trình. Các bạn nên lưu ý thể tích của Đ1 và Đ2 phải quy đổi thành đơn vị m3 (mét khối).
Bê tông móng băng

Hiện nay, các công trình biệt thự, nhà ở thường hay sử dụng móng băng. Các bạn có thể tham khảo công thức tính khối lượng bê tông móng băng với ví dụ cụ thể sau:
- Thể tích bê tông lót: Vbt = (3.64 + 2.34) * 2 * 0.65 * 0.1 = 0.7774 (m3);
- Khối lượng bê tông móng tính theo công thức: Vbt = (3.44 * 2 + 2.54 * 2) * (0.45 *0.21 + 0.33 * 0.14 + 0.56 * 0.22) = 3.1562 (m3)
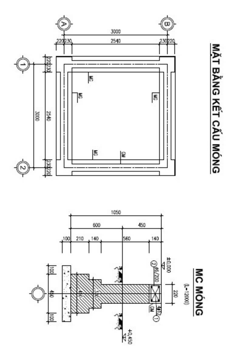
Bê tông đài móng
Để tính khối lượng bê tông đài móng, chúng ta lấy ví dụ như hình minh hoạ dưới đây để suy ra công thức:
Vbt = 5 * ((1 * 0.7) + (1.43 * 0.6 / 2)) * 0.7 = 3.9515 (m3).

>>> Có thể bạn quan tâm: Móng đơn là gì? Cấu tạo, phân loại và quy trình thi công móng đơn đạt chuẩn
Cách tính khối lượng bê tông sàn
Công thức chuẩn để tính khối lượng bê tông sàn, các bạn có thể áp dụng: Vbt = D * H * R (m3). Các bạn cũng có thể sử dụng: Vbt = chiều cao * diện tích kết cấu. Trong đó, D là chiều dài công trình (đường, sàn bê tông hay sân,…).
Ký hiệu R là chiều rộng khối bê tông, H là chiều dầy hay chiều cao của hạng mục (quy ước 0.2 – 0.3m với đường và với nhà dân dụng là 0.08 – 0.14m). Cuối cùng Vbt = chiều dài * chiều rộng * chiều cao * số lượng thành phần.
Bê tông cột
Nếu tính khối lượng bê tông cột thì phải tính chiều cao liên tục và không trừ đi dao dầm. Chúng ta sẽ trừ trong trường hợp tính khối lượng bê tông để làm dầm sau. Nhà thầu sẽ kiếm được nhiều lợi nhuận hơn khi áp dụng công thức này. Công thức khối lượng bê tông đổ cột:
Vbt = Tiết diện cột * Số lượng cột * Chiều cao
Bê tông đổ đường
Công thức tính bê tông đổ đường tương tự như với phần đổ sàn mà các bạn đã đọc ở trên. Ta có công thức như sau:
Vbt = R * H * D;
Khi đó, R là chiều rộng đường cần đổ và H được xem là chiều cao hoặc chiều dày của đường. D là đặc tính chiều dài đường và Vbt = chiều dài * chiều cao * chiều rộng * số lượng thành phần.
Những điều cần đặc biệt lưu ý khi tính khối lượng bê tông

Nhà thầu không những phải nắm rõ công thức tính toán lượng bê tông cần dùng mà còn cần đặc biệt chú ý những điều quan trọng sau để việc tính toán được đảm bảo chính xác:
- Bóc phần bê tông không trừ dây buộc hay thép chiếm chỗ, đây là phần phát sinh không đáng có, thường rất nhỏ nên cần bóc tách không trừ lượng thép sắt chiếm chỗ (với các loại bê tông cốt thép);
- Bóc phần bê tông phải nhớ trừ đi các lỗ rỗng và khe co giãn trên bề mặt, chúng ta không nhất thiết phải trừ thể tích khe và lỗ trên bề mặt thi công khi V < 0.1 (m3) khi tính khối lượng bê tông;
- Tính khối lượng cấu kiện bê tông giao nhau, khi tính bê tông cột dao dầm phải nhớ trừ ra phần dao dầm và chỉ tính duy nhất 1 lần. Không có quy định nào cho cách tính khối lượng bê tông đối với những phần giao nhau. Bạn có thể linh hoạt để phù hợp với công trình;
- Bóc tách bê tông không phụ thuộc chiều cao công trình, kích thước chiều cao của công trình được chỉ định trong định mức của Bộ Xây Dựng và Viện Kinh Tế. Điều này áp dụng trong quy trình bóc tách khối lượng bê tông để lên dự toán chi tiết. Như vậy, các mã hiệu bóc tách sẽ tương ứng theo chiều cao sẽ có chỉ số chiều cao rộng ở mức tương đương. Cần tìm hiểu thật kỹ để đưa ra được những thông số chuẩn.
Lời kết
Các bạn chắc đã nắm rõ được cách tính khối lượng bê tông sau khi đọc qua bài viết trên rồi. Kiến Phúc An rất hân hạnh cùng đồng hành với bạn trong quá trình tìm hiểu về lĩnh vực xây dựng. Chúng tôi hi vọng đã giúp đỡ cho bạn trong quá trình tìm hiểu về vấn đề này.
Tham khảo: Báo giá dịch vụ xây nhà trọn gói TPHCM giá rẻ, uy tín, thi công nhanh chóng

Bài viết liên quan: